Hlavní stránka / Reference / Rodinný dům Kostelec nčl Poustka

Realizace / reference

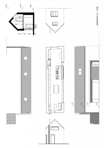
Rodinný dům Kostelec nčl Poustka

studie 2016

varianty rekonstrukce domu v památkové zóně


rd-kotelec-ncl-poustka-studie-02.jpg
rd-kotelec-ncl-poustka-studie-03.jpg
rd-kotelec-ncl-poustka-studie-05.jpg
rd-kotelec-ncl-poustka-studie-04.jpg
rd-kotelec-ncl-poustka-studie-01.jpg

RSS kanál  |  XML Sitemap  |  Mapa webu  |  Redakční systém WebRedakce - NETservis s.r.o. © 2026

 

Administraci zajišťuje redakční systém společnosti NETservis s.r.o.